全体外観完成予想パース(外観の完成予想図です。周辺画像はイメージで実際のものとは異なります。)
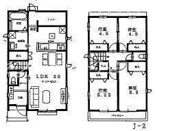
間取り
2026年3月23日撮影
2026年3月23日撮影
2026年3月23日撮影
区画図
2026年3月23日撮影
前面道路を含む現地写真
前面道路を含む現地写真



LDK20帖以上広々開放感がありご家族とゆっくり過ごせます♪全居室に収納完備でお部屋がスッキリ◎駐車2台可です!ご家族の車も来客用も安心です♪スーパーまで徒歩圏なので忙しい毎日に便利♪公園まで徒歩圏内
中央本線(東日本) 西八王子駅 バス 19分 「滝原新橋」 停歩 9分
元八王子小学校 約599m
元八王子中学校 約893m