2026年4月20日撮影
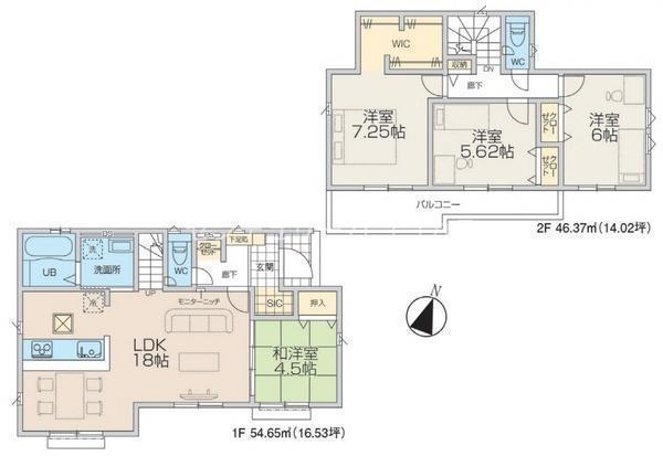
間取り
2026年4月20日撮影
2026年4月20日撮影
前面道路を含む現地写真
区画図
前面道路を含む現地写真



家計にも環境にも優しい貸与甲発電搭載物件☆ベビーカーやスポーツ用品を収納できる便利なSIC付き♪全居室収納付きで収納スペースが豊富◎リビングとなりの4帖和室は、お子様のお昼寝スペースや客間に最適!
中央本線(東日本) 西八王子駅 バス 23分 「神戸会館入口」 停歩 8分
中央本線(東日本) 八王子駅 バス 32分 「神戸会館入口」 停歩 8分
横浜線 八王子駅 バス 32分 「神戸会館入口」 停歩 8分
上壱分方小学校 約1393m
元八王子中学校 約1849m