今すぐ無料の会員登録で
閲覧可能物件数が
+0
営業時間: 9:00~18:00
定休日: 火・水曜日(GW/夏季/年末年始休日あり)

八王子市散田町の新築一戸建て 2026年1月12日撮影

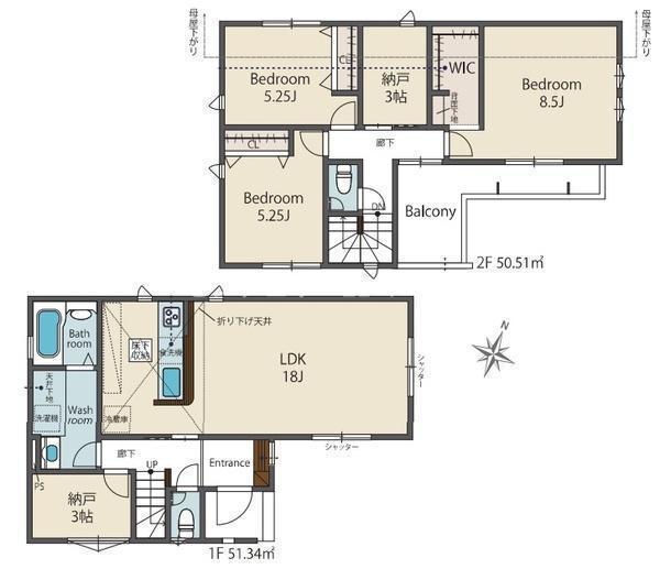
間取り

LDK18帖

対面キッチン、食洗機付

LDK18帖

区画図

バスルーム

3面鏡シャンプードレッサー

ウォシュレット機能付

2階洋室5.25帖

2階洋室5.25帖

2階洋室8.5帖

バルコニー

バルコニーからの眺望

2階納戸3帖

玄関、シューズボックス

玄関ドア

八王子市散田町の新築一戸建て 2026年1月12日撮影

八王子市散田町の新築一戸建て 2026年1月12日撮影

カースペース

2026年1月12日撮影

2026年1月12日撮影

浄水器一体型ハンドシャワー

3つ口ガスコンロ、グリル

ビルトイン食洗機

浴室換気暖房乾燥機リモコン

テレビモニター付きインターホン

建物
物件画像
周辺環境
QRコードをスキャンして携帯でもご覧になれます。

八王子市散田町 新築一戸建て・全2棟 今回販売1棟 1号棟

新築一戸建て
5,290万円
    東京都八王子市散田町1丁目
    表示住所までのルート

    中央本線(東日本) 西八王子駅 徒歩 7分 駅までのルート

    京王高尾線 山田駅 徒歩 21分 駅までのルート

    NEW現地見学会おすすめ
    間取り
    3LDK+S(納戸)(3SLDK)
    築年月
    2025年12月完成
    土地面積
    95.47㎡(28.87坪)[公簿]
    建物面積
    101.85㎡(30.8坪)
    資料請求お気に入りに追加
    お問い合わせ先: 0120-339-021
    電話でお問合せする

    JR中央線「西八王子」駅徒歩7分☆手荒れを気にせず使える食洗機付きで、食事後の片付けも簡単◎大容量のウォークインクローゼットで、夫婦の衣類や小物もすっきり収納!スーパー徒歩5分、毎日のお買い物に便利!

    私が物件をご紹介いたします!

    物件情報
    名称
    八王子市散田町 新築一戸建て・全2棟 今回販売1棟 1号棟
    価格
    5,290万円(税込)
    権利金/保証金
    なし/なし
    所在地
    東京都八王子市散田町1丁目地図
    交通

    中央本線(東日本) 西八王子駅 徒歩 7分

    京王高尾線 山田駅 徒歩 21分

    間取り
    3LDK+S(納戸)(3SLDK)
    部屋
    1F LDK 18.0帖 、1F S(納戸) 3.0帖 、2F 洋 8.5帖 、2F 洋 5.2帖 、2F 洋 5.2帖 、2F S(納戸) 3.0帖
    建物現況
    完成済
    建物面積
    101.85㎡(30.8坪)
    土地面積
    95.47㎡(28.87坪)[公簿]
    地目
    宅地
    土地権利
    所有権
    築年月
    2025年12月完成
    建物構造
    木造(W)
    建物階建
    2階建
    建物向き
    南東
    駐車場
    あり 1台 カースペース
    建築確認番号
    第R07SHC111592号
    設備・条件
    全居室収納 閑静な住宅街 日当り良好 複層ガラス 24時間換気システム バルコニー TVドアホン 物置 床下収納 システムキッチン シューズボックス 追い焚き 浴室1坪以上 オートバス 洗面化粧台 トイレ2ヶ所 シャンプードレッサー 食器洗乾燥機 ガス:都市ガス コンロ:ガス、三口 汚水:公共下水(使用可) 雑排水:公共下水(使用可) 水道:公営水道(使用可)
    都市計画
    市街化区域
    用途地域
    第一種住居地域
    建ぺい率/容積率
    60%/200%
    国土法の届出
    不要
    特記事項
    宅地造成及び特定盛土等規制法、第二種高度地区
    セットバック
    なし
    私道負担
    なし
    接道状況
    一方 東:幅員11.0m
    地域地区
    景観法 航空法
    引渡時期
    即引渡し可
    学区

    第七小学校 約1019m

    第七中学校 約734m

    備考
    宅地造成及び特定盛土等規制法、第二種高度地区
    物件情報更新日
    2026年01月16日(物件情報更新日より14日以内に更新)
    物件コード
    121806
    取引態様
    仲介
    資料請求お気に入りに追加
    お問い合わせ先: 0120-339-021
    電話でお問合せする

    地図

    本店
    〒192-0073
    東京都八王子市寺町69番地
    0120-339-021
    営業時間:9:00~18:00 定休日:火・水曜日(GW/夏季/年末年始休日あり)
    ローンシミュレーション
    • {{error}}
    物件価格
    5,290万円
    借入予定額
    万円
    頭金
    万円
    ボーナス(1回分)
    万円
    返済期間
    ローン金利
    金利
    %
    毎月の支払額
    {{repayment_price}} 円

    条件がよく似た物件

    外観
    八王子市散田町の新築一戸建て 2026年1月12日撮影
    外観
    八王子市散田町の新築一戸建て 2026年1月12日撮影
    間取図/区画図
    間取り
    リビング
    LDK18帖
    キッチン
    対面キッチン、食洗機付
    リビング
    LDK18帖
    その他
    区画図
    浴室
    バスルーム
    洗面室
    3面鏡シャンプードレッサー
    トイレ
    ウォシュレット機能付
    洋室
    2階洋室5.25帖
    洋室
    2階洋室5.25帖
    洋室
    2階洋室8.5帖
    バルコニー
    バルコニー
    眺望
    バルコニーからの眺望
    収納
    2階納戸3帖
    玄関
    玄関、シューズボックス
    玄関
    玄関ドア
    その他
    八王子市散田町の新築一戸建て 2026年1月12日撮影
    その他
    八王子市散田町の新築一戸建て 2026年1月12日撮影
    駐車場
    カースペース
    その他
    2026年1月12日撮影
    その他
    2026年1月12日撮影
    キッチン
    浄水器一体型ハンドシャワー
    キッチン
    3つ口ガスコンロ、グリル
    キッチン
    ビルトイン食洗機
    その他
    浴室換気暖房乾燥機リモコン
    その他
    テレビモニター付きインターホン
    間取図/区画図
    間取り
    外観
    八王子市散田町の新築一戸建て 2026年1月12日撮影
    リビング
    LDK18帖
    キッチン
    対面キッチン、食洗機付
    リビング
    LDK18帖
    その他
    区画図
    浴室
    バスルーム
    洗面室
    3面鏡シャンプードレッサー
    トイレ
    ウォシュレット機能付
    洋室
    2階洋室5.25帖
    洋室
    2階洋室5.25帖
    洋室
    2階洋室8.5帖
    バルコニー
    バルコニー
    眺望
    バルコニーからの眺望
    収納
    2階納戸3帖
    玄関
    玄関、シューズボックス
    玄関
    玄関ドア
    その他
    八王子市散田町の新築一戸建て 2026年1月12日撮影
    その他
    八王子市散田町の新築一戸建て 2026年1月12日撮影
    駐車場
    カースペース
    その他
    2026年1月12日撮影
    その他
    2026年1月12日撮影
    キッチン
    浄水器一体型ハンドシャワー
    キッチン
    3つ口ガスコンロ、グリル
    キッチン
    ビルトイン食洗機
    その他
    浴室換気暖房乾燥機リモコン
    その他
    テレビモニター付きインターホン
    スーパーアルプス西八王子駅前店(スーパー) 478m
    八王子市立第七小学校(小学校) 1020m
    八王子市立第七中学校(中学校) 766m
    スーパーアルプス台町店(スーパー) 505m
    ダイエー西八王子店(スーパー) 524m
    コピオ西八王子駅前(ショッピング施設) 468m
    千人保育園(幼稚園・保育園) 928m
    医療法人社団永生会南多摩病院(病院) 502m
    千人町桑の実公園(公園) 865m
    スマートフォン版の表示に切り替える