外観完成予想パース(外観の完成予想図です。周辺画像はイメージで実際のものとは異なります。)
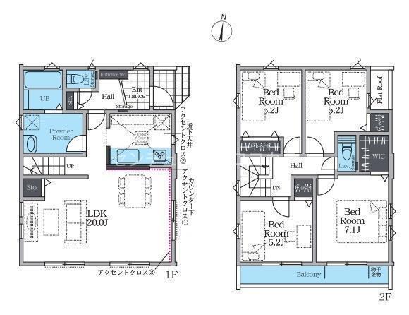
間取り
2026年3月30日撮影
2026年3月30日撮影
2026年3月30日撮影
区画図
2026年3月30日撮影
2026年3月30日撮影 全体写真
2026年3月30日撮影 全体写真



京王高尾線「山田」駅徒歩13分!20帖の広々LDKは、家族が自然と集まる開放的な空間☆洗い物から乾燥までお任せできる便利な食洗器付き!洋服はもちろん、スーツケースや季節家電まで収納可能なWIC付き☆
京王高尾線 山田駅 徒歩 13分
由井第三小学校 約466m
由井中学校 約1855m