外観完成予想パース(外観の完成予想図です。周辺画像はイメージで実際のものとは異なります。)
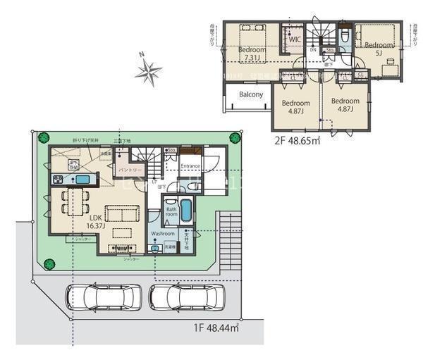
間取り
2026年2月12日撮影
2026年2月12日撮影
2026年2月12日撮影
区画図
2026年2月12日撮影
2026年1月23日撮影
2026年1月23日撮影



狭間駅より徒歩15分☆小中学校まで徒歩8分、スーパーやコンビニなどの生活施設も充実した暮らしやすい住環境♪LDK広々16帖超、ご家族でゆったりくつろげる広さ!食料品の備蓄もできるパントリー収納付き!
京王高尾線 狭間駅 徒歩 15分
京王高尾線 めじろ台駅 徒歩 18分
横山第一小学校 約345m
椚田中学校 約639m