今すぐ無料の会員登録で
閲覧可能物件数が
+0
営業時間: 9:00~18:00
定休日: 火・水曜日(GW/夏季/年末年始休日あり)

間取り

NO IMAGE
建物
物件画像
周辺環境
QRコードをスキャンして携帯でもご覧になれます。

八王子市南陽台2丁目 中古一戸建て

中古一戸建て
2,850万円
    東京都八王子市南陽台2丁目
    表示住所までのルート

    京王線 長沼駅 徒歩 22分 駅までのルート

    京王線 平山城址公園駅 徒歩 26分 駅までのルート

    NEW現地見学会おすすめ
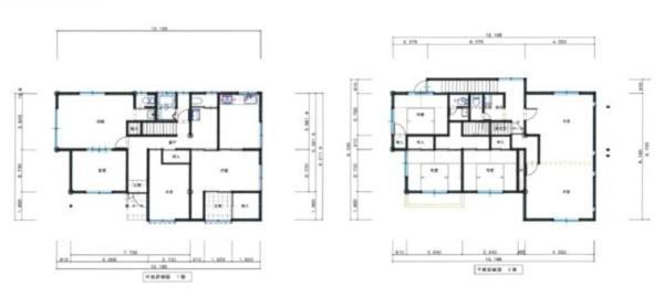
    間取り
    7DK+S(納戸)(7SDK)
    築年月
    1978年10月完成
    土地面積
    226.95㎡(68.65坪)[公簿]
    建物面積
    144.14㎡(43.6坪)
    資料請求お気に入りに追加
    お問い合わせ先: 0120-339-021
    電話でお問合せする

    高台の穏やかな街並みに佇む、敷地約68坪のゆとりある住まい。南向きで陽当たり良好◎7部屋のゆとりが、家族それぞれの理想を叶えます♪自然豊かな閑静な住宅街で、季節の移ろいを感じながら穏やかに暮らせます♪

    私が物件をご紹介いたします!

    物件情報
    名称
    八王子市南陽台2丁目 中古一戸建て
    価格
    2,850万円(税込)
    権利金/保証金
    なし/なし
    所在地
    東京都八王子市南陽台2丁目地図
    交通

    京王線 長沼駅 徒歩 22分

    京王線 平山城址公園駅 徒歩 26分

    間取り
    7DK+S(納戸)(7SDK)
    部屋
    1F DK 6.0帖 、1F 洋 6.0帖 、1F 洋 4.0帖 、2F 洋 8.0帖 、2F 洋 8.0帖 、2F 和 6.0帖 、2F 和 6.0帖 、2F 和 6.0帖
    建物現況
    完成済
    建物面積
    144.14㎡(43.6坪)
    土地面積
    226.95㎡(68.65坪)[公簿]
    地目
    宅地
    土地権利
    所有権
    築年月
    1978年10月完成
    建物構造
    木造(W)
    建物階建
    2階建
    建物向き
    設備・条件
    フローリング シャンプードレッサー トイレ2ヶ所 洗面化粧台 追い焚き 物置 TVドアホン 日当り良好 閑静な住宅街 コンロ:その他、二口
    都市計画
    市街化区域
    用途地域
    第一種低層住居専用地域
    建ぺい率/容積率
    40%/80%
    国土法の届出
    不要
    地勢
    高台
    セットバック
    なし
    私道負担
    なし
    接道状況
    指定なし
    引渡時期
    即引渡し可
    学区

    由木中央小学校 約1393m

    由木中学校 約1734m

    物件情報更新日
    2025年10月12日(物件情報更新日より14日以内に更新)
    物件コード
    121355
    取引態様
    仲介
    資料請求お気に入りに追加
    お問い合わせ先: 0120-339-021
    電話でお問合せする

    地図

    本店
    〒192-0073
    東京都八王子市寺町69番地
    0120-339-021
    営業時間:9:00~18:00 定休日:火・水曜日(GW/夏季/年末年始休日あり)
    ローンシミュレーション
    • {{error}}
    物件価格
    2,850万円
    借入予定額
    万円
    頭金
    万円
    ボーナス(1回分)
    万円
    返済期間
    ローン金利
    金利
    %
    毎月の支払額
    {{repayment_price}} 円

    条件がよく似た物件

    間取図/区画図
    間取り
    間取図/区画図
    間取り
    ビッグ・エー八王子長沼町店(スーパー) 2265m
    八王子市立由木中央小学校(小学校) 1398m
    八王子市立由木中学校(中学校) 1755m
    マックスバリュエクスプレス平山団地店(スーパー) 2055m
    ジェーソン八王子上柚木店(スーパー) 3148m
    三井アウトレットパーク多摩南大沢(ショッピング施設) 3258m
    北野保育園(幼稚園・保育園) 3317m
    岡島医院(病院) 1397m
    富士見台公園(公園) 2240m
    スマートフォン版の表示に切り替える