八王子市絹ケ丘の中古一戸建て
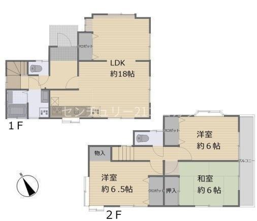
間取り
LDK約18帖
キッチン
LDK約18帖
バスルーム
洗面台・洗面脱衣所
ウォシュレット機能付トイレ
2階和室約6帖
2階洋室約6.5帖
2階洋室約6帖
小屋裏収納
バルコニー
バルコニーからの眺望
玄関、シューズボックス
玄関ドア
八王子市絹ケ丘の中古一戸建て
八王子市絹ケ丘の中古一戸建て
ビルトインガレージ
前面道路を含む現地写真
前面道路を含む現地写真
水栓、シンク
3つ口ガスコンロ、グリル
ビルトイン食洗機
浴室換気暖房乾燥機リモコン
テレビモニター付きインターホン



北野駅徒歩19分で電車のアクセス◎野猿街道沿いの高台に位置しており、八王子市街を一望できます!フルリフォーム住宅!全居室に収納スペースがあります!LDK18帖で開放感があり、ゆったりとくつろげます♪
京王線 長沼駅 徒歩 17分
京王線 北野駅 徒歩 19分
長沼小学校 約1506m
打越中学校 約1685m