外観完成予想パース(外観の完成予想図です。周辺画像はイメージで実際のものとは異なります。)
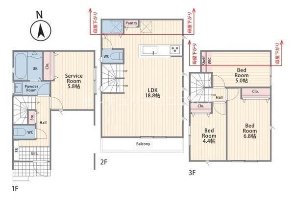
間取り
2026年4月17日撮影
2026年4月17日撮影
2026年4月17日撮影
区画図
カースペース1台分
2026年4月17日撮影
2026年4月17日撮影



18帖超のゆとりある2階リビング☆上階にあることで外からの視線を気にせず、家族がのびのびとくつろげる♪食品や日用品をすっきりまとめて収納できるパントリー付き☆小学校まで徒歩4分、お子様の通学も安心◎
第二小学校 約311m
第四中学校 約770m