外観完成予想パース(外観の完成予想図です。周辺画像はイメージで実際のものとは異なります。)
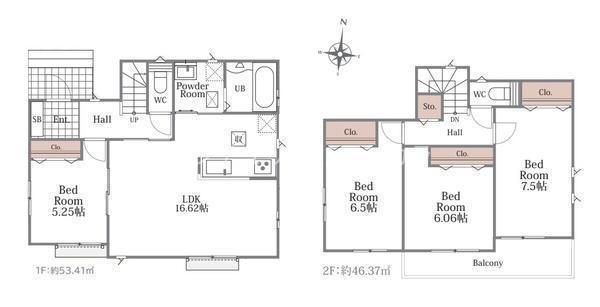
間取り
区画図



開放感あふれる角地に、ゆとりの60坪の広さ♪陽当たり・風通しともに良好◎全室南向きで、どのお部屋もたっぷりの陽光が差し込む明るい住まい!カースペース2台分確保!ご夫婦それぞれのお車や来客時にも安心♪
中央本線(東日本) 高尾駅 バス 14分 「元八2丁目北」 停歩 7分
京王高尾線 高尾駅 バス 14分 「元八2丁目北」 停歩 7分
中央本線(東日本) 西八王子駅 バス 15分 「石神坂」 停歩 7分
城山小学校 約1253m
城山中学校 約1592m