今すぐ無料の会員登録で
閲覧可能物件数が
+0
営業時間: 9:00~18:00
定休日: 火・水曜日(GW/夏季/年末年始休日あり)

間取り

NO IMAGE
建物
物件画像
周辺環境
QRコードをスキャンして携帯でもご覧になれます。

サウスガーデン子安町 中古マンション

サウスガーデン子安町 中古マンション

中古マンション
3,680万円
  • 共益費・管理費:
    13,800円
  • 修繕積立金(月額):
    15,990円
東京都八王子市子安町2丁目
表示住所までのルート

中央本線(東日本) 八王子駅 徒歩 10分 駅までのルート

横浜線 八王子駅 徒歩 10分 駅までのルート

八高線 八王子駅 徒歩 10分 駅までのルート

NEW現地見学会おすすめ
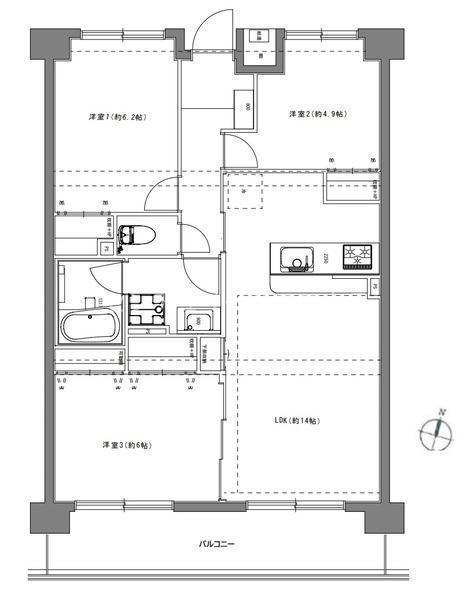
間取り
3LDK(3LDK)
所在階
3階
築年月
1998年01月完成
専有面積
68.03㎡(20.57坪)[壁芯]
資料請求お気に入りに追加
お問い合わせ先: 0120-339-021
電話でお問合せする

「八王子」駅駅徒歩10分♪南東向きで陽当たり良好な住まい!大切なペットと一緒に暮らせるマンション♪全居室に収納を完備、衣類や日用品をすっきり収納可能♪六本杉公園も徒歩6分で子育て世帯に嬉しい住環境◎

私が物件をご紹介いたします!

物件情報
名称
サウスガーデン子安町 中古マンション
価格
3,680万円(税無)
共益費・管理費
13,800円
修繕積立金(月額)
15,990円
権利金/保証金
なし/なし
所在地
東京都八王子市子安町2丁目地図
交通

中央本線(東日本) 八王子駅 徒歩 10分

横浜線 八王子駅 徒歩 10分

八高線 八王子駅 徒歩 10分

間取り
3LDK(3LDK)
部屋
LDK 14.0帖 、洋 6.2帖 、洋 6.0帖 、洋 4.9帖
専有面積
68.03㎡(20.57坪)[壁芯]
築年月
1998年01月完成
建物構造
鉄筋コンクリート造(RC)
所在階/建物階建
3階 / 5階建
総戸数/販売戸数
24戸/1戸
主要採光面
南東
その他面積
バルコニー面積:9.45㎡
現況
駐車場
なし
管理
管理形態:全部委託 管理人状況:巡回 管理会社:日本総合住生活株式会社
施工会社
松村組
設備・条件
全居室収納 閑静な住宅街 日当り良好 バルコニー 宅配ボックス エレベーター オートロック TVドアホン 物置 フローリング シューズボックス 追い焚き 浴室1坪以上 浴室乾燥機 オートバス 洗面化粧台 システムキッチン ガス:都市ガス コンロ:ガス、三口 汚水:公共下水(使用可) 雑排水:公共下水(使用可) 水道:公営水道(使用可) ペット:可
土地権利
所有権
国土法の届出
不要
引渡時期
相談
学区

いずみの森義務教育学校小学校 約454m

いずみの森義務教育学校中学校 約454m

物件情報更新日
2026年04月12日(物件情報更新日より14日以内に更新)
物件コード
122140
取引態様
媒介(専任)
建物情報
建物現況
完成済
建物名称
サウスガーデン子安町 中古マンション
建物向き
南東
資料請求お気に入りに追加
お問い合わせ先: 0120-339-021
電話でお問合せする

地図

区画・住戸情報

本店
〒192-0073
東京都八王子市寺町69番地
0120-339-021
営業時間:9:00~18:00 定休日:火・水曜日(GW/夏季/年末年始休日あり)
ローンシミュレーション
  • {{error}}
物件価格
3,680万円
借入予定額
万円
頭金
万円
ボーナス(1回分)
万円
返済期間
ローン金利
金利
%
毎月の支払額
{{repayment_price}} 円

条件がよく似た物件

間取図/区画図
間取り
間取図/区画図
間取り
グルメシティ京王八王子店(スーパー) 982m
八王子市立いずみの森義務教育学校(小学校) 355m
八王子市立いずみの森義務教育学校(中学校) 527m
いなげやブルーミングブルーミーセレオ八王子店(スーパー) 1222m
スーパーアルプス八王子駅南口店(スーパー) 1036m
CELEO八王子北館(ショッピング施設) 1092m
北野保育園(幼稚園・保育園) 887m
秋山内科医院(病院) 376m
六本杉公園(公園) 461m
スマートフォン版の表示に切り替える