外観完成予想パース(外観の完成予想図です。周辺画像はイメージで実際のものとは異なります。)
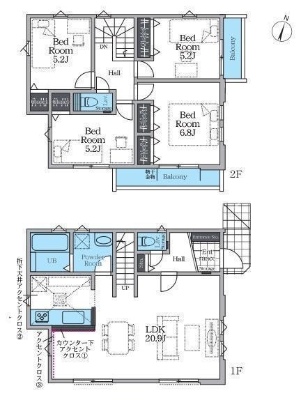
間取り
2026年3月9日撮影
2026年3月9日撮影
2026年3月9日撮影
区画図
2026年3月9日撮影
2026年3月9日撮影
前面道路を含む現地写真
前面道路を含む現地写真



京王高尾線「山田」駅徒歩13分!20帖の広々LDKは、家族が自然と集まる開放的な空間☆洗い物から乾燥までお任せできる便利な食洗器付き!2WAYバルコニーは風通しも良く、洗濯物や布団を干すのもスムーズ♪
京王高尾線 山田駅 徒歩 13分
由井第三小学校 約466m
由井中学校 約1855m