2026年2月5日撮影
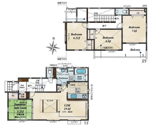
間取り
2026年2月5日撮影
2026年2月5日撮影
2026年2月5日撮影
区画図
2026年2月5日撮影
2026年2月5日撮影 全体写真
2026年2月5日撮影
2026年2月5日撮影



JR八高線「北八王子」駅より徒歩18分☆毎日をのびのび過ごせる19帖LDK♪各部屋ごとに収納があるため、家族それぞれの荷物をしっかり整理可能◎カースペース2台分可、ご夫婦それぞれの車や来客用にも対応!
八高線 北八王子駅 徒歩 18分
中央本線(東日本) 日野駅 バス 11分 「石川町東」 停歩 2分
第八小学校 約1781m
第一中学校 約1776m