2025年12月26日撮影
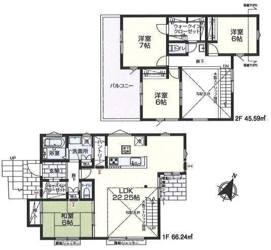
間取り
2025年12月26日撮影
2025年12月26日撮影
2025年12月26日撮影
区画図
2025年12月26日撮影
2025年12月26日撮影
2025年12月26日撮影
2025年12月26日撮影



光あふれる吹抜け22帖のリビングで開放感がありご家族とゆっくり過ごせます♪全居室収納とWIC完備でお部屋スッキリ◎駐車2台可!スーパー徒歩圏内で便利です☆食品や日用品の大量ストックに便利なパントリー付
中央本線(東日本) 西八王子駅 バス 18分 「カインズ八王子長房店前」 停歩 9分
長房小学校 約688m
長房中学校 約1268m