八王子市椚田町の中古マンション、マイキャッスル椚田
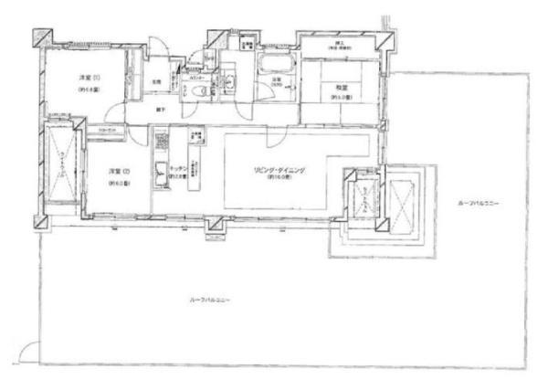
間取り
八王子市椚田町の中古マンション、マイキャッスル椚田
エントランス正面
駐車場付近
バイク置場付近
駐輪場・バイク置場付近
前面道路含む現地写真



最上階・角部屋の南向き住戸。日当たり・通風・眺望も良好です。リビングから続く広々としたルーフバルコニーを備え、開放感のある暮らしを実現。床暖房や追い焚きなど設備も充実、ペットと暮らせるマンションです。
京王高尾線 めじろ台駅 徒歩 16分
中央本線(東日本) 西八王子駅 バス 13分 「椚田」 停歩 5分
横山第一小学校 約850m
椚田中学校 約450m