今すぐ無料の会員登録で
閲覧可能物件数が
+0
営業時間: 9:00~18:00
定休日: 火・水曜日(GW/夏季/年末年始休日あり)

八王子市館町の新築一戸建て 2026年3月27日撮影

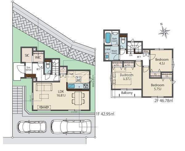
間取り

LDK16.81帖

キッチン

LDK16.81帖

区画図

バスルーム

洗面台・洗面脱衣所

トイレ

2階洋室6.37帖

2階洋室5.75帖

2階洋室4.5帖

バルコニー

バルコニーからの眺望

玄関

玄関

シューズインクローゼット

八王子市館町の新築一戸建て

八王子市館町の新築一戸建て

八王子市館町の新築一戸建て

カースペース2台分

前面道路を含む現地写真 

水栓、シンク

3つ口ガスコンロ、グリル

浴室換気乾燥暖房リモコン

テレビモニター付きインターホン

建物
物件画像
周辺環境
QRコードをスキャンして携帯でもご覧になれます。

八王子市館町 新築一戸建て・全11棟 7号棟

新築一戸建て
3,590万円
    東京都八王子市館町
    表示住所までのルート

    京王高尾線 狭間駅 徒歩 15分 駅までのルート

    京王高尾線 めじろ台駅 徒歩 18分 駅までのルート

    NEW現地見学会おすすめ
    間取り
    3LDK(3LDK)
    築年月
    2026年03月完成
    土地面積
    128.18㎡(38.77坪)[公簿]
    建物面積
    89.73㎡(27.14坪)
    資料請求お気に入りに追加
    お問い合わせ先: 0120-339-021
    電話でお問合せする

    狭間駅より徒歩15分☆小中学校まで徒歩8分、スーパーやコンビニなどの生活施設も充実した暮らしやすい住環境♪ゆとりある16帖LDK☆ベビーカーやスポーツ用品を収納できるSIC付き!カースペース2台分可◎

    私が物件をご紹介いたします!

    物件情報
    名称
    八王子市館町 新築一戸建て・全11棟 7号棟
    価格
    3,590万円(税込)
    権利金/保証金
    なし/なし
    所在地
    東京都八王子市館町地図
    交通

    京王高尾線 狭間駅 徒歩 15分

    京王高尾線 めじろ台駅 徒歩 18分

    間取り
    3LDK(3LDK)
    部屋
    1F LDK 16.8帖 、2F 洋 6.3帖 、2F 洋 5.7帖 、2F 洋 4.5帖
    建物現況
    完成済
    建物面積
    89.73㎡(27.14坪)
    土地面積
    128.18㎡(38.77坪)[公簿]
    地目
    宅地
    土地権利
    所有権
    築年月
    2026年03月完成
    建物構造
    木造(W)
    建物階建
    2階建
    建物向き
    駐車場
    あり 2台 カースペース
    建築確認番号
    第R07SHC121016号
    設備・条件
    シューズボックス 閑静な住宅街 日当り良好 複層ガラス 24時間換気システム バルコニー TVドアホン 物置 床下収納 全居室収納 システムキッチン ウォークインクローゼット 追い焚き 浴室1坪以上 浴室乾燥機 オートバス 洗面化粧台 トイレ2ヶ所 シャンプードレッサー 食器棚 ガス:都市ガス コンロ:ガス、三口 汚水:公共下水(使用可) 雑排水:公共下水(使用可) 水道:公営水道(使用可)
    都市計画
    市街化区域
    用途地域
    第二種中高層住居専用地域
    建ぺい率/容積率
    60%/200%
    国土法の届出
    不要
    特記事項
    公有地拡大推進法、宅地造成及び特定規制法、立地適正化計画
    セットバック
    なし
    私道負担
    なし
    接道状況
    一方 東:幅員5.0m
    地域地区
    航空法
    引渡時期
    即引渡し可
    学区

    横山第一小学校 約345m

    椚田中学校 約639m

    物件情報更新日
    2026年03月31日(物件情報更新日より14日以内に更新)
    物件コード
    121737
    取引態様
    仲介
    資料請求お気に入りに追加
    お問い合わせ先: 0120-339-021
    電話でお問合せする

    地図

    本店
    〒192-0073
    東京都八王子市寺町69番地
    0120-339-021
    営業時間:9:00~18:00 定休日:火・水曜日(GW/夏季/年末年始休日あり)
    ローンシミュレーション
    • {{error}}
    物件価格
    3,590万円
    借入予定額
    万円
    頭金
    万円
    ボーナス(1回分)
    万円
    返済期間
    ローン金利
    金利
    %
    毎月の支払額
    {{repayment_price}} 円

    条件がよく似た物件

    外観
    八王子市館町の新築一戸建て 2026年3月27日撮影
    外観
    八王子市館町の新築一戸建て 2026年3月27日撮影
    間取図/区画図
    間取り
    リビング
    LDK16.81帖
    キッチン
    キッチン
    リビング
    LDK16.81帖
    その他
    区画図
    浴室
    バスルーム
    洗面室
    洗面台・洗面脱衣所
    トイレ
    トイレ
    洋室
    2階洋室6.37帖
    洋室
    2階洋室5.75帖
    洋室
    2階洋室4.5帖
    バルコニー
    バルコニー
    眺望
    バルコニーからの眺望
    玄関
    玄関
    玄関
    玄関
    収納
    シューズインクローゼット
    その他
    八王子市館町の新築一戸建て
    その他
    八王子市館町の新築一戸建て
    その他
    八王子市館町の新築一戸建て
    駐車場
    カースペース2台分
    その他
    前面道路を含む現地写真 
    キッチン
    水栓、シンク
    キッチン
    3つ口ガスコンロ、グリル
    浴室
    浴室換気乾燥暖房リモコン
    リビング
    テレビモニター付きインターホン
    間取図/区画図
    間取り
    外観
    八王子市館町の新築一戸建て 2026年3月27日撮影
    リビング
    LDK16.81帖
    キッチン
    キッチン
    リビング
    LDK16.81帖
    その他
    区画図
    浴室
    バスルーム
    洗面室
    洗面台・洗面脱衣所
    トイレ
    トイレ
    洋室
    2階洋室6.37帖
    洋室
    2階洋室5.75帖
    洋室
    2階洋室4.5帖
    バルコニー
    バルコニー
    眺望
    バルコニーからの眺望
    玄関
    玄関
    玄関
    玄関
    収納
    シューズインクローゼット
    その他
    八王子市館町の新築一戸建て
    その他
    八王子市館町の新築一戸建て
    その他
    八王子市館町の新築一戸建て
    駐車場
    カースペース2台分
    その他
    前面道路を含む現地写真 
    キッチン
    水栓、シンク
    キッチン
    3つ口ガスコンロ、グリル
    浴室
    浴室換気乾燥暖房リモコン
    リビング
    テレビモニター付きインターホン
    スーパーアルプスはざま店(スーパー) 486m
    八王子市立横山第一小学校(小学校) 350m
    八王子市立椚田中学校(中学校) 638m
    イトーヨーカドー八王子店(スーパー) 1123m
    フードワンゆりのき台店(スーパー) 1183m
    イーアス高尾(ショッピング施設) 2301m
    白百合寺田保育園(幼稚園・保育園) 2194m
    はしもと小児科(病院) 588m
    椚田公園(公園) 483m
    スマートフォン版の表示に切り替える