八王子市北野町新築一戸建て・全5棟 4号棟
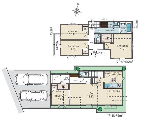
間取り
LDK18.37帖
キッチン
LDK18.37帖
区画図
1階洋室3.75帖
バスルーム
洗面台・洗面脱衣所
ウォシュレット機能付トイレ
2階洋室7.12帖
2階洋室5.12帖
2階洋室5.12帖
バルコニー
バルコニーからの眺望
玄関
玄関
八王子市北野町新築一戸建て・全5棟 4号棟
八王子市北野町新築一戸建て・全5棟 4号棟
駐車場
前面道路を含む現地写真
前面道路を含む現地写真
水栓、シンク
3つ口ガスコンロ、グリル
浴室換気乾燥暖房リモコン
テレビモニター付きインターホン



「北野」駅より徒歩6分、通勤通学に便利な立地☆LDKはゆとりある18帖超!大きな窓から暖かな陽光がさす陽だまりのリビング☆前面道路8mで車の出し入れも安心◎由井第一小学校徒歩7分、お子様の通学も安心!
由井第一小学校 約514m
打越中学校 約698m