外観完成予想パース(外観の完成予想図です。周辺画像はイメージで実際のものとは異なります。)
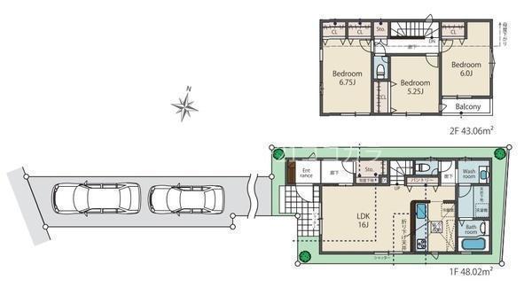
間取り
全体 外観完成予想パース(外観の完成予想図です。周辺画像はイメージで実際のものとは異なります。)
2026年1月12日撮影
2026年1月12日撮影
区画図
2026年1月12日撮影
2026年1月12日撮影
2026年1月12日撮影



「北野」駅より徒歩6分、通勤通学に便利な立地☆LDKはゆとりある16帖!大きな窓から暖かな陽光がさす陽だまりのリビング☆前面道路8mで車の出し入れも安心◎由井第一小学校徒歩7分、お子様の通学も安心!
由井第一小学校 約514m
打越中学校 約698m