八王子市北野町新築一戸建て・全5棟 2号棟
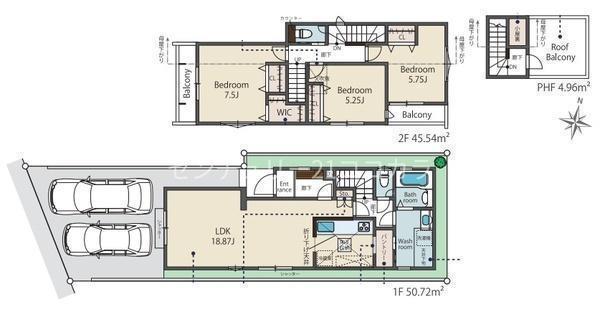
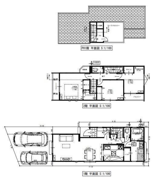
間取り
LDK18.87帖
キッチン
LDK18.87帖
区画図
バスルーム
洗面台・洗面脱衣所
トイレ
2階洋室5.75帖
2階洋室5.25帖
2階洋室7.5帖
バルコニー
バルコニー
バルコニーからの眺望
バルコニーからの眺望
玄関
玄関ドア
八王子市北野町新築一戸建て・全5棟 2号棟
八王子市北野町新築一戸建て・全5棟 2号棟
駐車場
前面道路を含む現地写真
前面道路を含む現地写真
水栓、シンク
3つ口ガスコンロ、グリル
浴室換気乾燥暖房リモコン
前面道路を含む現地写真



「北野」駅より徒歩6分、通勤通学に便利な立地☆LDKはゆとりある18帖超!大きな窓から暖かな陽光がさす陽だまりのリビング☆前面道路8mで車の出し入れも安心◎由井第一小学校徒歩7分、お子様の通学も安心!
由井第一小学校 約514m
打越中学校 約698m