今すぐ無料の会員登録で
閲覧可能物件数が
+0
営業時間: 9:00~18:00
定休日: 火・水曜日(GW/夏季/年末年始休日あり)

外観完成予想パース(外観の完成予想図です。周辺画像はイメージで実際のものとは異なります。)

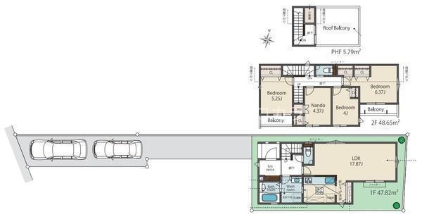
間取り

全体 外観完成予想パース(外観の完成予想図です。周辺画像はイメージで実際のものとは異なります。)

2026年3月15日撮影

2026年3月15日撮影

区画図

2026年3月15日撮影

2026年3月15日撮影

2026年3月15日撮影 全体写真

前面道路を含む現地写真 

前面道路を含む現地写真 

建物
物件画像
周辺環境
QRコードをスキャンして携帯でもご覧になれます。

八王子市北野町 新築一戸建て・全5棟 1号棟

新築一戸建て
4,980万円
    東京都八王子市北野町
    表示住所までのルート

    京王線 北野駅 徒歩 6分 駅までのルート

    NEW現地見学会おすすめ
    間取り
    3LDK+S(納戸)(3SLDK)
    築年月
    2026年03月予定
    土地面積
    128.9㎡(38.99坪)[公簿]
    建物面積
    101.02㎡(30.55坪)[登記]
    資料請求お気に入りに追加
    お問い合わせ先: 0120-339-021
    電話でお問合せする

    「北野」駅より徒歩6分、通勤通学に便利な立地☆LDKはゆとりある16帖超!大きな窓から暖かな陽光がさす陽だまりのリビング☆前面道路8mで車の出し入れも安心◎由井第一小学校徒歩7分、お子様の通学も安心!

    私が物件をご紹介いたします!

    物件情報
    名称
    八王子市北野町 新築一戸建て・全5棟 1号棟
    価格
    4,980万円(税込)
    権利金/保証金
    なし/なし
    所在地
    東京都八王子市北野町地図
    交通

    京王線 北野駅 徒歩 6分

    間取り
    3LDK+S(納戸)(3SLDK)
    部屋
    1F LDK 17.8帖 、2F 洋 6.3帖 、2F 洋 4.0帖 、2F 洋 5.2帖 、2F S(納戸) 4.3帖
    建物現況
    建築中
    建物面積
    101.02㎡(30.55坪)[登記]
    土地面積
    128.9㎡(38.99坪)[公簿]
    地目
    宅地
    土地権利
    所有権
    築年月
    2026年03月予定
    建物構造
    木造(W)
    建物階建
    2階建
    建物向き
    建築確認番号
    第R07SHC122594号
    設備・条件
    追い焚き 閑静な住宅街 日当り良好 複層ガラス TVドアホン 物置 床下収納 全居室収納 シューズボックス カウンターキッチン 浴室1坪以上 オートバス 洗面化粧台 トイレ2ヶ所 シャンプードレッサー 食器棚 システムキッチン ガス:都市ガス コンロ:ガス、三口 汚水:公共下水(使用可) 雑排水:公共下水(使用可) 水道:公営水道(使用可)
    都市計画
    市街化区域
    用途地域
    第一種低層住居専用地域
    建ぺい率/容積率
    60%/200%
    国土法の届出
    不要
    セットバック
    なし
    私道負担
    なし
    接道状況
    一方 南西:幅員8.0m公道
    引渡時期
    相談
    学区

    由井第一小学校 約514m

    打越中学校 約698m

    物件情報更新日
    2026年03月22日(物件情報更新日より14日以内に更新)
    物件コード
    121693
    取引態様
    仲介
    資料請求お気に入りに追加
    お問い合わせ先: 0120-339-021
    電話でお問合せする

    地図

    本店
    〒192-0073
    東京都八王子市寺町69番地
    0120-339-021
    営業時間:9:00~18:00 定休日:火・水曜日(GW/夏季/年末年始休日あり)
    ローンシミュレーション
    • {{error}}
    物件価格
    4,980万円
    借入予定額
    万円
    頭金
    万円
    ボーナス(1回分)
    万円
    返済期間
    ローン金利
    金利
    %
    毎月の支払額
    {{repayment_price}} 円

    条件がよく似た物件

    外観
    外観完成予想パース(外観の完成予想図です。周辺画像はイメージで実際のものとは異なります。)
    外観
    外観完成予想パース(外観の完成予想図です。周辺画像はイメージで実際のものとは異なります。)
    間取図/区画図
    間取り
    その他
    全体 外観完成予想パース(外観の完成予想図です。周辺画像はイメージで実際のものとは異なります。)
    その他
    2026年3月15日撮影
    その他
    2026年3月15日撮影
    その他
    区画図
    その他
    2026年3月15日撮影
    その他
    2026年3月15日撮影
    その他
    2026年3月15日撮影 全体写真
    その他
    前面道路を含む現地写真 
    その他
    前面道路を含む現地写真 
    間取図/区画図
    間取り
    外観
    外観完成予想パース(外観の完成予想図です。周辺画像はイメージで実際のものとは異なります。)
    その他
    全体 外観完成予想パース(外観の完成予想図です。周辺画像はイメージで実際のものとは異なります。)
    その他
    2026年3月15日撮影
    その他
    2026年3月15日撮影
    その他
    区画図
    その他
    2026年3月15日撮影
    その他
    2026年3月15日撮影
    その他
    2026年3月15日撮影 全体写真
    その他
    前面道路を含む現地写真 
    その他
    前面道路を含む現地写真 
    スーパーアルプス北野店(スーパー) 456m
    八王子市立由井第一小学校(小学校) 535m
    八王子市立打越中学校(中学校) 657m
    京王ストア北野店(スーパー) 504m
    業務スーパー八王子店(スーパー) 833m
    コピオ北野(ショッピング施設) 495m
    北野保育園(幼稚園・保育園) 449m
    北野内科クリニック(病院) 202m
    中土入公園(公園) 1095m
    スマートフォン版の表示に切り替える