八王子市中野山王1丁目の中古一戸建て
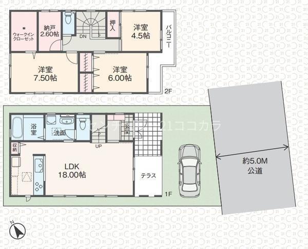
間取り
八王子市中野山王1丁目の中古一戸建て
八王子市中野山王1丁目の中古一戸建て
八王子市中野山王1丁目の中古一戸建て
カースペース1台分
前面道路を含む現地写真
前面道路を含む現地写真


私たちセンチュリー21ココカラは、不動産で「ここからはじまる幸せをつくる」というミッションのもと、
地域密着で50年以上にわたり、お住まい探しをサポートしてきました。
不動産のプロとして、戸建・マンション・土地など幅広いニーズに寄り添い、理想の暮らしの第一歩を共に創ります。
何かと大きな決断が必要な不動産、ぜひ一度ご相談ください。
◆センチュリー21ココカラのオリジナルブランド、CoCoKaraシリーズ!売主直売、新規リフォーム物件です。
仲介手数料不要!
テラス付きの開放的な3LDK☆家族が自然と集まる開放的な18帖LDK!家族が自然と顔を合わせられるリビング階段を採用♪主寝室には大容量のウォークインクローゼットを完備!生活施設が充実した快適な住環境♪
中央本線(東日本) 八王子駅 バス 10分 「川口川橋」 停歩 5分
横浜線 八王子駅 バス 10分 「川口川橋」 停歩 5分
八高線 八王子駅 バス 10分 「川口川橋」 停歩 5分
中野北小学校 約570m
第二中学校 約1633m