今すぐ無料の会員登録で
閲覧可能物件数が
+0
営業時間: 9:00~18:00
定休日: 火・水曜日(GW/夏季/年末年始休日あり)

2026年2月27日撮影

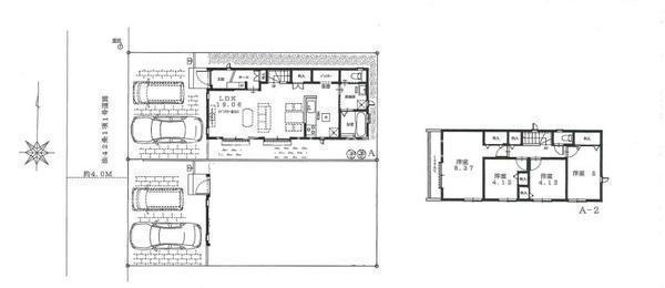
間取り

2026年2月27日撮影

2026年2月27日撮影

2026年2月27日撮影

区画図

2026年2月27日撮影

2026年2月27日撮影

建物
物件画像
周辺環境
QRコードをスキャンして携帯でもご覧になれます。

八王子市富士見町 新築一戸建て・全2棟 A号棟

新築一戸建て
4,190万円
    東京都八王子市富士見町
    表示住所までのルート

    八高線 北八王子駅 徒歩 15分 駅までのルート

    NEW現地見学会おすすめ
    間取り
    4LDK(4LDK)
    築年月
    2026年02月完成
    土地面積
    114.52㎡(34.64坪)[実測]
    建物面積
    94.91㎡(28.71坪)[実測]
    資料請求お気に入りに追加
    お問い合わせ先: 0120-339-021
    電話でお問合せする

    北八王子駅より徒歩15分!通勤通学に便利です◎LDK18帖以上で広々しておりご家族とゆっくり過ごせます♪カースペース2台可なので家族が車を所有しやすく、また来客の駐車スペースを確保できるので便利です!

    私が物件をご紹介いたします!

    物件情報
    名称
    八王子市富士見町 新築一戸建て・全2棟 A号棟
    価格
    4,190万円(税込)
    権利金/保証金
    なし/なし
    所在地
    東京都八王子市富士見町地図
    交通

    八高線 北八王子駅 徒歩 15分

    間取り
    4LDK(4LDK)
    部屋
    1F LDK 19.0帖 、2F 洋 8.3帖 、2F 洋 4.1帖 、2F 洋 4.1帖 、2F 洋 5.0帖
    建物現況
    完成済
    建物面積
    94.91㎡(28.71坪)[実測]
    土地面積
    114.52㎡(34.64坪)[実測]
    地目
    宅地
    土地権利
    所有権
    築年月
    2026年02月完成
    建物構造
    木造(W)
    建物階建
    2階建
    駐車場
    あり 2台 カースペース
    建築確認番号
    第HPA-25-12122-1号
    設備・条件
    システムキッチン 食器棚 シャンプードレッサー 洗面化粧台 シューズボックス 全居室収納 物置 バルコニー 日当り良好 閑静な住宅街 ガス:都市ガス コンロ:ガス、三口 汚水:公共下水(使用可) 雑排水:公共下水(使用可) 水道:公営水道(使用可)
    都市計画
    市街化区域
    用途地域
    第一種低層住居専用地域
    建ぺい率/容積率
    50%/100%
    国土法の届出
    不要
    特記事項
    第一種高度地区
    セットバック
    なし
    私道負担
    なし
    接道状況
    一方 西:幅員4.0m公道
    地域地区
    準防火地域
    引渡時期
    相談
    学区

    第十小学校 約1030m

    ひよどり山中学校 約1807m

    物件情報更新日
    2026年03月01日(物件情報更新日より14日以内に更新)
    物件コード
    121521
    取引態様
    仲介
    資料請求お気に入りに追加
    お問い合わせ先: 0120-339-021
    電話でお問合せする

    地図

    本店
    〒192-0073
    東京都八王子市寺町69番地
    0120-339-021
    営業時間:9:00~18:00 定休日:火・水曜日(GW/夏季/年末年始休日あり)
    ローンシミュレーション
    • {{error}}
    物件価格
    4,190万円
    借入予定額
    万円
    頭金
    万円
    ボーナス(1回分)
    万円
    返済期間
    ローン金利
    金利
    %
    毎月の支払額
    {{repayment_price}} 円

    条件がよく似た物件

    外観
    2026年2月27日撮影
    外観
    2026年2月27日撮影
    間取図/区画図
    間取り
    その他
    2026年2月27日撮影
    その他
    2026年2月27日撮影
    その他
    2026年2月27日撮影
    その他
    区画図
    その他
    2026年2月27日撮影
    その他
    2026年2月27日撮影
    間取図/区画図
    間取り
    外観
    2026年2月27日撮影
    その他
    2026年2月27日撮影
    その他
    2026年2月27日撮影
    その他
    2026年2月27日撮影
    その他
    区画図
    その他
    2026年2月27日撮影
    その他
    2026年2月27日撮影
    イオンフードスタイル八王子大和田店(スーパー) 725m
    八王子市立第十小学校(小学校) 1032m
    八王子市立ひよどり山中学校(中学校) 1834m
    スーパーアルプス大和田店(スーパー) 749m
    オーケー北八王子店(スーパー) 1567m
    フォレストモール八王子大和田(ショッピング施設) 733m
    静教保育園(幼稚園・保育園) 2160m
    東海大学医学部付属八王子病院(病院) 1212m
    北大和田公園(公園) 902m
    スマートフォン版の表示に切り替える