今すぐ無料の会員登録で
閲覧可能物件数が
+0
営業時間: 9:00~18:00
定休日: 火・水曜日(GW/夏季/年末年始休日あり)

八王子市元本郷町の中古一戸建て

明るく風通しの良い2階リビング!南側はバルコニーに面しており、開放感も感じられるリビングです。室内の写真はCGで家具を消して空室後のイメージを再現しています。

お料理中も会話を楽しめる対面キッチン!忙しい時でも遊んでいるお子様に目が届きやすく安心です。室内の写真はCGで家具を消して空室後のイメージを再現しています。

季節物などの収納に便利なロフト。収納以外にもお子様との遊び場など様々な使い方のイメージも広がるスペースです。室内の写真はCGで家具を消して空室後のイメージを再現しています。

南向きのバルコニーでは心地よい日差しやさわやかな風を感じられます。晴れた日にはたっぷりの洗濯物やお布団を干すことができます。

1日の疲れをいやすバスルームはお子様との入浴時にも使いやすいリラックスサイズ。空気の入れ替えに充分な窓があるので換気も良好!やさしい雰囲気の色合いで落ち着いた空間です。

使い心地の良いウォシュレット機能付トイレ!窓から光が入るので明るい室内で換気も良好です。

全居室2面採光の明るく風通しの良い住空間!休息や趣味といったプライベートの時間もゆったり快適にくつろげます。

白を基調とした洋室には様々なテイストの家具が良く映え、お好みの家具を置いて個性に合わせたインテリアを楽しめます。

使い心地の良いウォシュレット機能付トイレ!清潔感のあるトイレ空間です。

お庭はお子様の遊び場として、またガーデニングを楽しんだりと趣味やライフスタイルに合わせて使える空間です。

八王子市元本郷町の中古一戸建て

八王子市元本郷町の中古一戸建て

建物
物件画像
周辺環境
QRコードをスキャンして携帯でもご覧になれます。

八王子市元本郷町1丁目 中古一戸建て

中古一戸建て
2,880万円
    東京都八王子市元本郷町1丁目
    表示住所までのルート

    中央本線(東日本) 西八王子駅 徒歩 20分 駅までのルート

    NEW現地見学会おすすめ
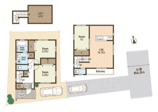
    間取り
    3LDK(3LDK)
    築年月
    2020年05月完成
    土地面積
    82.26㎡(24.88坪)[公簿]
    建物面積
    79.49㎡(24.04坪)
    資料請求お気に入りに追加
    お問い合わせ先: 0120-339-021
    電話でお問合せする

    令和2年築の築浅戸建!室内綺麗な3LDKです。明るい2階リビングの間取り。バルコニーに面し開放感も味わえます。ロフト付。小中学校が近くお子様の登下校も安心です。

    私が物件をご紹介いたします!

    物件情報
    名称
    八王子市元本郷町1丁目 中古一戸建て
    価格
    2,880万円(税無)
    権利金/保証金
    なし/なし
    所在地
    東京都八王子市元本郷町1丁目
    交通

    中央本線(東日本) 西八王子駅 徒歩 20分

    間取り
    3LDK(3LDK)
    部屋
    1F 洋 5.7帖 、1F 洋 5.2帖 、2F LDK 14.7帖 、2F 洋 5.0帖
    建物現況
    完成済
    建物面積
    79.49㎡(24.04坪)
    土地面積
    82.26㎡(24.88坪)[公簿]
    地目
    宅地
    土地権利
    所有権
    築年月
    2020年05月完成
    建物構造
    木造(W)
    建物階建
    2階建
    建物向き
    駐車場
    あり
    設備・条件
    フローリング カウンターキッチン システムキッチン シャンプードレッサー トイレ2ヶ所 オートバス 浴室乾燥機 ロフト シューズボックス 全居室収納 物置 TVドアホン バルコニー 日当り良好 閑静な住宅街 ガス:都市ガス コンロ:その他、三口 汚水:公共下水(使用可) 雑排水:公共下水(使用可) 水道:公営水道(使用可)
    都市計画
    市街化区域
    用途地域
    準工業地域
    建ぺい率/容積率
    60%/200%
    国土法の届出
    不要
    セットバック
    なし
    私道負担
    あり 20.39㎡(公簿)
    接道状況
    一方 東:幅員4.0m
    引渡時期
    相談
    学区

    第二小学校 約550m

    第四中学校 約280m

    備考
    契約不適合責任免責・境界非表示・私道持分20.39平米×1/3別有
    物件情報更新日
    2025年10月21日(物件情報更新日より14日以内に更新)
    物件コード
    121402
    取引態様
    媒介(専任)
    資料請求お気に入りに追加
    お問い合わせ先: 0120-339-021
    電話でお問合せする
    本店
    〒192-0073
    東京都八王子市寺町69番地
    0120-339-021
    営業時間:9:00~18:00 定休日:火・水曜日(GW/夏季/年末年始休日あり)
    ローンシミュレーション
    • {{error}}
    物件価格
    2,880万円
    借入予定額
    万円
    頭金
    万円
    ボーナス(1回分)
    万円
    返済期間
    ローン金利
    金利
    %
    毎月の支払額
    {{repayment_price}} 円

    条件がよく似た物件

    外観
    八王子市元本郷町の中古一戸建て
    外観
    八王子市元本郷町の中古一戸建て
    間取図/区画図
    リビング
    明るく風通しの良い2階リビング!南側はバルコニーに面しており、開放感も感じられるリビングです。室内の写真はCGで家具を消して空室後のイメージを再現しています。
    キッチン
    お料理中も会話を楽しめる対面キッチン!忙しい時でも遊んでいるお子様に目が届きやすく安心です。室内の写真はCGで家具を消して空室後のイメージを再現しています。
    収納
    季節物などの収納に便利なロフト。収納以外にもお子様との遊び場など様々な使い方のイメージも広がるスペースです。室内の写真はCGで家具を消して空室後のイメージを再現しています。
    バルコニー
    南向きのバルコニーでは心地よい日差しやさわやかな風を感じられます。晴れた日にはたっぷりの洗濯物やお布団を干すことができます。
    浴室
    1日の疲れをいやすバスルームはお子様との入浴時にも使いやすいリラックスサイズ。空気の入れ替えに充分な窓があるので換気も良好!やさしい雰囲気の色合いで落ち着いた空間です。
    トイレ
    使い心地の良いウォシュレット機能付トイレ!窓から光が入るので明るい室内で換気も良好です。
    洋室
    全居室2面採光の明るく風通しの良い住空間!休息や趣味といったプライベートの時間もゆったり快適にくつろげます。
    洋室
    白を基調とした洋室には様々なテイストの家具が良く映え、お好みの家具を置いて個性に合わせたインテリアを楽しめます。
    トイレ
    使い心地の良いウォシュレット機能付トイレ!清潔感のあるトイレ空間です。
    専用庭
    お庭はお子様の遊び場として、またガーデニングを楽しんだりと趣味やライフスタイルに合わせて使える空間です。
    その他
    八王子市元本郷町の中古一戸建て
    その他
    八王子市元本郷町の中古一戸建て
    間取図/区画図
    外観
    八王子市元本郷町の中古一戸建て
    リビング
    明るく風通しの良い2階リビング!南側はバルコニーに面しており、開放感も感じられるリビングです。室内の写真はCGで家具を消して空室後のイメージを再現しています。
    キッチン
    お料理中も会話を楽しめる対面キッチン!忙しい時でも遊んでいるお子様に目が届きやすく安心です。室内の写真はCGで家具を消して空室後のイメージを再現しています。
    収納
    季節物などの収納に便利なロフト。収納以外にもお子様との遊び場など様々な使い方のイメージも広がるスペースです。室内の写真はCGで家具を消して空室後のイメージを再現しています。
    バルコニー
    南向きのバルコニーでは心地よい日差しやさわやかな風を感じられます。晴れた日にはたっぷりの洗濯物やお布団を干すことができます。
    浴室
    1日の疲れをいやすバスルームはお子様との入浴時にも使いやすいリラックスサイズ。空気の入れ替えに充分な窓があるので換気も良好!やさしい雰囲気の色合いで落ち着いた空間です。
    トイレ
    使い心地の良いウォシュレット機能付トイレ!窓から光が入るので明るい室内で換気も良好です。
    洋室
    全居室2面採光の明るく風通しの良い住空間!休息や趣味といったプライベートの時間もゆったり快適にくつろげます。
    洋室
    白を基調とした洋室には様々なテイストの家具が良く映え、お好みの家具を置いて個性に合わせたインテリアを楽しめます。
    トイレ
    使い心地の良いウォシュレット機能付トイレ!清潔感のあるトイレ空間です。
    専用庭
    お庭はお子様の遊び場として、またガーデニングを楽しんだりと趣味やライフスタイルに合わせて使える空間です。
    その他
    八王子市元本郷町の中古一戸建て
    その他
    八王子市元本郷町の中古一戸建て
    八王子市立第二小学校(小学校) 550m
    八王子市立第四中学校(中学校) 280m
    エコス大横店(スーパー) 900m
    八木町公園(公園) 450m
    赤上消化器内科医院(病院) 500m
    スーパーアルプス中野店(スーパー) 1200m
    業務スーパー田町店(スーパー) 1300m
    スマートフォン版の表示に切り替える