今すぐ無料の会員登録で
閲覧可能物件数が
+0
営業時間: 9:00~18:00
定休日: 火・水曜日(GW/夏季/年末年始休日あり)

間取り

NO IMAGE
建物
物件画像
周辺環境
QRコードをスキャンして携帯でもご覧になれます。

八王子市大和田町2丁目 店舗付中古一戸建て

中古一戸建て
4,600万円
    東京都八王子市大和田町2丁目
    表示住所までのルート

    八高線 北八王子駅 徒歩 11分 駅までのルート

    中央本線(東日本) 八王子駅 徒歩 25分 駅までのルート

    横浜線 八王子駅 徒歩 25分 駅までのルート

    NEW現地見学会おすすめ
    間取り
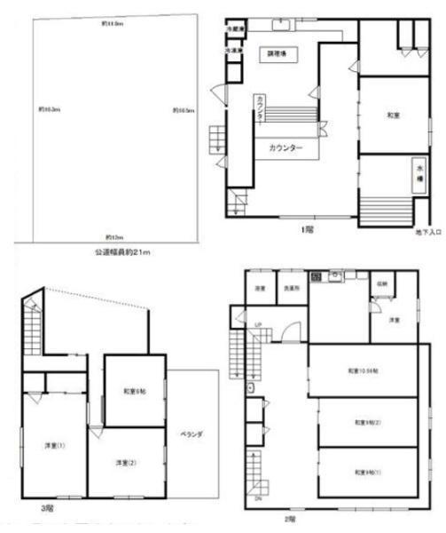
    7LDK(7LDK)
    築年月
    1978年09月完成
    土地面積
    181.78㎡(54.98坪)[公簿]
    建物面積
    284.37㎡(86.02坪)
    資料請求お気に入りに追加
    お問い合わせ先: 0120-339-021
    電話でお問合せする

    敷地50坪超!国道20号沿いで店舗経営に適した視認性の高い立地!住まいとお仕事を両立できる間取り!住居部分は採光・通風も良く、暮らしやすいつくりに。周辺には商業施設も多く点在し、生活利便性も充実!

    私が物件をご紹介いたします!

    物件情報
    名称
    八王子市大和田町2丁目 店舗付中古一戸建て
    価格
    4,600万円(税込)
    権利金/保証金
    なし/なし
    所在地
    東京都八王子市大和田町2丁目
    交通

    八高線 北八王子駅 徒歩 11分

    中央本線(東日本) 八王子駅 徒歩 25分

    横浜線 八王子駅 徒歩 25分

    間取り
    7LDK(7LDK)
    建物現況
    完成済
    建物面積
    284.37㎡(86.02坪)
    土地面積
    181.78㎡(54.98坪)[公簿]
    地目
    宅地
    土地権利
    所有権
    築年月
    1978年09月完成
    建物構造
    鉄骨造(S)
    建物階建
    3階建
    駐車場
    あり 4台
    設備・条件
    システムキッチン 物置 バルコニー 日当り良好 ガス:都市ガス 汚水:公共下水(使用可) 雑排水:公共下水(使用可) 水道:公営水道(使用可)
    用途地域
    準工業地域
    建ぺい率/容積率
    60%/200%
    国土法の届出
    不要
    セットバック
    なし
    私道負担
    なし
    接道状況
    一方 南:幅員21.0m
    地域地区
    景観法 航空法
    引渡時期
    相談
    学区

    大和田小学校 約550m

    第一中学校 約900m

    備考
    駐車4台可(車種による)・鉄骨、木造3階建・建物契約不適合責任免責・地下室・昭和57年増築
    物件情報更新日
    2025年10月17日(物件情報更新日より14日以内に更新)
    物件コード
    121368
    取引態様
    仲介
    資料請求お気に入りに追加
    お問い合わせ先: 0120-339-021
    電話でお問合せする
    本店
    〒192-0073
    東京都八王子市寺町69番地
    0120-339-021
    営業時間:9:00~18:00 定休日:火・水曜日(GW/夏季/年末年始休日あり)
    ローンシミュレーション
    • {{error}}
    物件価格
    4,600万円
    借入予定額
    万円
    頭金
    万円
    ボーナス(1回分)
    万円
    返済期間
    ローン金利
    金利
    %
    毎月の支払額
    {{repayment_price}} 円

    条件がよく似た物件

    間取図/区画図
    間取り
    間取図/区画図
    間取り
    スーパーアルプス高倉店(スーパー) 600m
    八王子市立大和田小学校(小学校) 550m
    八王子市立第一中学校(中学校) 900m
    北大和田公園(公園) 300m
    太田医院(病院) 1000m
    オーケー北八王子店(スーパー) 600m
    sanwa旭が丘店(スーパー) 800m
    スマートフォン版の表示に切り替える