八王子市大谷町の中古一戸建て
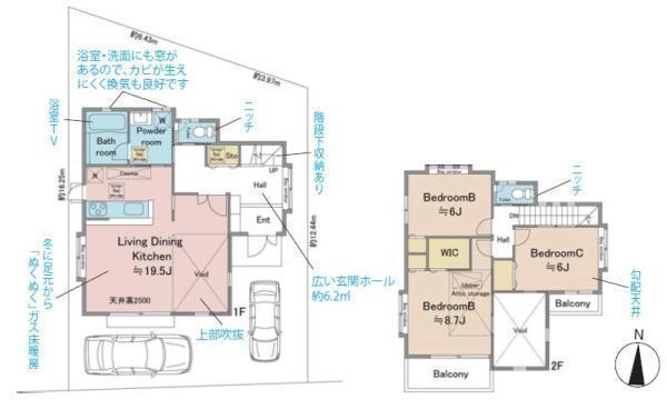
間取り及び区画図
LDK19.5帖
キッチン
カップボード
LDK19.5帖
LDK19.5帖
リビング上部吹き抜け
バスルーム
洗面台・洗面脱衣所
トイレ
2階洋室8.7帖
2階洋室8.7帖 ウォークインクローゼット
2階洋室6帖
2階洋室6帖
バルコニー
玄関
玄関
八王子市大谷町の中古一戸建て
八王子市大谷町の中古一戸建て
八王子市大谷町の中古一戸建て
カースペース2台分
前面道路を含む現地写真



新規リフォーム物件!北八王子駅徒歩13分、南向きで全室2面採光、明るく風通しの良い吹抜けリビング18帖以上。収納豊富で家事や子育てもスムーズ。徒歩圏に小学校やスーパーもあり安心で快適な暮らしが叶います
八高線 北八王子駅 徒歩 13分
横浜線 八王子駅 バス 10分 「団地入口」 停歩 2分
中央本線(東日本) 八王子駅 バス 10分 「団地入口」 停歩 2分
第八小学校 約800m
第一中学校 約900m