今すぐ無料の会員登録で
閲覧可能物件数が
+0
営業時間: 9:00~18:00
定休日: 火・水曜日(GW/夏季/年末年始休日あり)

2025年10月10日撮影

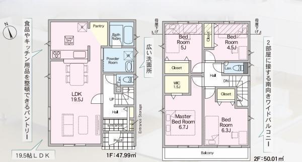
間取り

2025年10月10日撮影

2025年10月10日撮影

全体写真 2025年10月10日撮影

区画図

カースペース2台分

2025年10月10日撮影

2025年10月10日撮影

建物
物件画像
周辺環境
QRコードをスキャンして携帯でもご覧になれます。

八王子市元八王子町 新築一戸建て・全4棟 2号棟

新築一戸建て
2,780万円
    東京都八王子市元八王子町2丁目
    表示住所までのルート

    中央本線(東日本) 高尾駅 バス 8分 「出羽橋」 停歩 4分 駅までのルート

    NEW現地見学会おすすめ
    間取り
    4LDK(4LDK)
    築年月
    2025年12月予定
    土地面積
    125.05㎡(37.82坪)[公簿]
    建物面積
    98㎡(29.64坪)
    資料請求お気に入りに追加
    お問い合わせ先: 0120-339-021
    電話でお問合せする

    JR中央線「高尾」駅よりバス8分・停歩4分!周辺は緑豊かな閑静な住宅地、生活施設が揃う快適な住環境!広々LDK19帖、 二面採光で明るくご家族団らんにぴったり♪南向きのワイドバルコニーで日当たり良好◎

    私が物件をご紹介いたします!

    物件情報
    名称
    八王子市元八王子町 新築一戸建て・全4棟 2号棟
    価格
    2,780万円(税込)
    権利金/保証金
    なし/なし
    所在地
    東京都八王子市元八王子町2丁目地図
    交通

    中央本線(東日本) 高尾駅 バス 8分 「出羽橋」 停歩 4分

    間取り
    4LDK(4LDK)
    部屋
    1F LDK 19.5帖 、2F 洋 6.7帖 、2F 洋 6.3帖 、2F 洋 5.0帖 、2F 洋 4.5帖
    建物現況
    建築中
    建物面積
    98㎡(29.64坪)
    土地面積
    125.05㎡(37.82坪)[公簿]
    地目
    土地権利
    所有権
    築年月
    2025年12月予定
    建物構造
    木造(W)
    建物階建
    2階建
    建物向き
    駐車場
    あり 2台 カースペース
    建築確認番号
    第25UDI1W建05324号
    設備・条件
    ウォークインクローゼット 閑静な住宅街 日当り良好 複層ガラス バルコニー TVドアホン 物置 床下収納 全居室収納 シューズボックス フローリング 追い焚き 浴室1坪以上 浴室乾燥機 オートバス 洗面化粧台 トイレ2ヶ所 シャンプードレッサー システムキッチン カウンターキッチン ガス:個別プロパン コンロ:ガス、三口 汚水:公共下水(使用可) 雑排水:公共下水(使用可) 水道:公営水道(使用可)
    都市計画
    市街化区域
    用途地域
    第一種低層住居専用地域
    建ぺい率/容積率
    40%/80%
    国土法の届出
    不要
    特記事項
    建基法22条区域、第一種高度地区、元八王子南部地区計画区域、都市再生特別措置法
    セットバック
    なし
    私道負担
    なし
    接道状況
    一方 南:幅員4.0m
    地域地区
    宅地造成工事規制区域 景観法 航空法 高さ最高限度有
    引渡時期
    相談
    学区

    城山小学校 約832m

    城山中学校 約2596m

    備考
    建基法22条区域、第一種高度地区、元八王子南部地区計画区域、都市再生特別措置法
    物件情報更新日
    2025年10月12日(物件情報更新日より14日以内に更新)
    物件コード
    121336
    取引態様
    仲介
    資料請求お気に入りに追加
    お問い合わせ先: 0120-339-021
    電話でお問合せする

    地図

    本店
    〒192-0073
    東京都八王子市寺町69番地
    0120-339-021
    営業時間:9:00~18:00 定休日:火・水曜日(GW/夏季/年末年始休日あり)
    ローンシミュレーション
    • {{error}}
    物件価格
    2,780万円
    借入予定額
    万円
    頭金
    万円
    ボーナス(1回分)
    万円
    返済期間
    ローン金利
    金利
    %
    毎月の支払額
    {{repayment_price}} 円

    条件がよく似た物件

    外観
    2025年10月10日撮影
    外観
    2025年10月10日撮影
    間取図/区画図
    間取り
    その他
    2025年10月10日撮影
    その他
    2025年10月10日撮影
    その他
    全体写真 2025年10月10日撮影
    その他
    区画図
    駐車場
    カースペース2台分
    その他
    2025年10月10日撮影
    その他
    2025年10月10日撮影
    間取図/区画図
    間取り
    外観
    2025年10月10日撮影
    その他
    2025年10月10日撮影
    その他
    2025年10月10日撮影
    その他
    全体写真 2025年10月10日撮影
    その他
    区画図
    駐車場
    カースペース2台分
    その他
    2025年10月10日撮影
    その他
    2025年10月10日撮影
    コープみらいコープ城山手店(スーパー) 794m
    八王子市立城山小学校(小学校) 840m
    八王子市立城山中学校(中学校) 2601m
    エコスTAIRAYA元八王子店(スーパー) 1228m
    スーパーオザム大楽寺店(スーパー) 2404m
    コピオ長房(ショッピング施設) 1723m
    元八王子保育園(幼稚園・保育園) 1847m
    クリニック田島(病院) 779m
    近藤内科医院(病院) 1337m
    スマートフォン版の表示に切り替える