ドラゴンマンション多摩学園都市伍番館
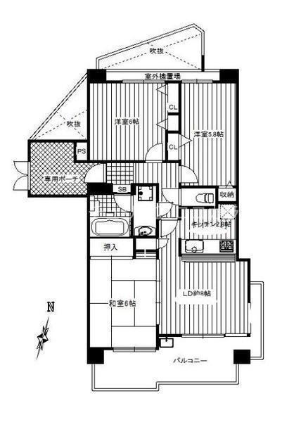
間取り
エントランス付近
ドラゴンマンション多摩学園都市伍番館
ゴミ置き場
ドラゴンマンション多摩学園都市伍番館
ドラゴンマンション多摩学園都市伍番館
駐車場
駐車場
前面道路を含む現地写真
前面道路を含む現地写真



10階からの圧倒的な眺望が魅力♪多摩の自然豊かな景色を楽しめます。最寄り駅まで徒歩3分の好立地!多摩動物公園やサンリオピューロランドが近くファミリーにぴったり◎
多摩モノレール 中央大学・明星大学駅 徒歩 3分
由木東小学校 約1558m
松が谷中学校 約2138m