今すぐ無料の会員登録で
閲覧可能物件数が
+0
営業時間: 9:00~18:00
定休日: 火・水曜日(GW/夏季/年末年始休日あり)

八王子市上野町の中古一戸建て

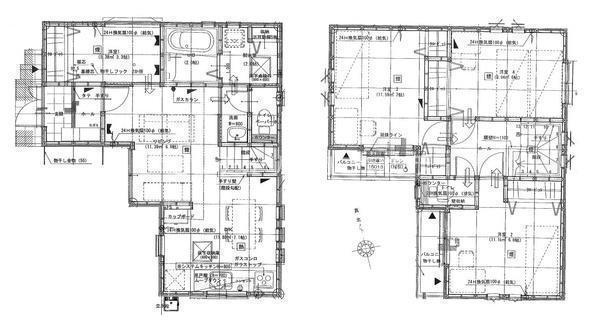
間取り

八王子市上野町の中古一戸建て

八王子市上野町の中古一戸建て

駐車場は並列駐車で2台分◎(車種による)来客時やお子様の免許取得時に大変便利です♪車がない時間帯はお子様とビニールプールやミニBBQも楽しめそうです。

前面道路は6.9m!幅が広く、車の入出庫がしやすいお住まいです◎駐車が苦手な方も安心です。

3路線が通るJR八王子駅より徒歩15分!東京駅や新宿駅、横浜駅に直通☆急な異動やお子様の進学時も引っ越しの心配がありません。

建物
物件画像
周辺環境
QRコードをスキャンして携帯でもご覧になれます。

八王子市上野町 中古一戸建て

本店
森 塁斗
お問い合わせ先: 0120-339-021

おすすめコメント

私たちセンチュリー21ココカラは、不動産で「ここからはじまる幸せをつくる」というミッションのもと、
地域密着で50年以上にわたり、お住まい探しをサポートしてきました。
不動産のプロとして、戸建・マンション・土地など幅広いニーズに寄り添い、理想の暮らしの第一歩を共に創ります。
何かと大きな決断が必要な不動産、ぜひ一度ご相談ください。

中古一戸建て
4,580万円
    東京都八王子市上野町
    表示住所までのルート

    中央本線(東日本) 八王子駅 徒歩 15分 駅までのルート

    NEW現地見学会おすすめ
    間取り
    3LDK+S(納戸)(3SLDK)
    築年月
    2016年02月完成
    土地面積
    92.61㎡(28.01坪)[公簿]
    建物面積
    89.42㎡(27.04坪)
    資料請求お気に入りに追加
    お問い合わせ先: 0120-339-021
    電話でお問合せする

    ■物件について
    驚異の好立地に美しい状態の戸建てが新登場☆小学校やスーパーが徒歩10分以内!子育てをしやすい住環境です◎お住まいはゆったりとした広さの3SLDK!全居室6帖以上で、成長したお子様ものびのび過ごせます。

    物件情報
    名称
    八王子市上野町 中古一戸建て
    価格
    4,580万円(税無)
    権利金/保証金
    なし/なし
    所在地
    東京都八王子市上野町地図
    交通

    中央本線(東日本) 八王子駅 徒歩 15分

    間取り
    3LDK+S(納戸)(3SLDK)
    部屋
    1F LDK 14.0帖 、1F S(納戸) 3.3帖 、2F 洋 7.0帖 、2F 洋 6.8帖 、2F 洋 6.0帖
    建物現況
    完成済
    建物面積
    89.42㎡(27.04坪)
    土地面積
    92.61㎡(28.01坪)[公簿]
    地目
    宅地
    土地権利
    所有権
    築年月
    2016年02月完成
    建物構造
    木造(W)
    建物階建
    2階建
    建物向き
    駐車場
    あり 2台
    設備・条件
    フローリング システムキッチン シャンプードレッサー トイレ2ヶ所 洗面化粧台 オートバス 浴室乾燥機 追い焚き シューズボックス 全居室収納 床下収納 物置 TVドアホン 日当り良好 閑静な住宅街 ガス:都市ガス コンロ:ガス、三口 汚水:公共下水(使用可) 雑排水:公共下水(使用可) 水道:公営水道(使用可) 委任・専任物件
    都市計画
    市街化区域
    用途地域
    近隣商業地域
    建ぺい率/容積率
    80%/200%
    国土法の届出
    不要
    セットバック
    なし
    私道負担
    なし
    接道状況
    一方 西:幅員6.9m
    引渡時期
    2026年5月中旬
    学区

    第七小学校 約377m

    第六中学校 約772m

    物件情報更新日
    2025年10月10日(物件情報更新日より14日以内に更新)
    物件コード
    121284
    取引態様
    媒介(専任)
    資料請求お気に入りに追加
    お問い合わせ先: 0120-339-021
    電話でお問合せする

    地図

    本店
    〒192-0073
    東京都八王子市寺町69番地
    0120-339-021
    営業時間:9:00~18:00 定休日:火・水曜日(GW/夏季/年末年始休日あり)
    ローンシミュレーション
    • {{error}}
    物件価格
    4,580万円
    借入予定額
    万円
    頭金
    万円
    ボーナス(1回分)
    万円
    返済期間
    ローン金利
    金利
    %
    毎月の支払額
    {{repayment_price}} 円

    条件がよく似た物件

    外観
    八王子市上野町の中古一戸建て
    外観
    八王子市上野町の中古一戸建て
    間取図/区画図
    間取り
    その他
    八王子市上野町の中古一戸建て
    その他
    八王子市上野町の中古一戸建て
    駐車場
    駐車場は並列駐車で2台分◎(車種による)来客時やお子様の免許取得時に大変便利です♪車がない時間帯はお子様とビニールプールやミニBBQも楽しめそうです。
    その他
    前面道路は6.9m!幅が広く、車の入出庫がしやすいお住まいです◎駐車が苦手な方も安心です。
    その他
    3路線が通るJR八王子駅より徒歩15分!東京駅や新宿駅、横浜駅に直通☆急な異動やお子様の進学時も引っ越しの心配がありません。
    間取図/区画図
    間取り
    外観
    八王子市上野町の中古一戸建て
    その他
    八王子市上野町の中古一戸建て
    その他
    八王子市上野町の中古一戸建て
    駐車場
    駐車場は並列駐車で2台分◎(車種による)来客時やお子様の免許取得時に大変便利です♪車がない時間帯はお子様とビニールプールやミニBBQも楽しめそうです。
    その他
    前面道路は6.9m!幅が広く、車の入出庫がしやすいお住まいです◎駐車が苦手な方も安心です。
    その他
    3路線が通るJR八王子駅より徒歩15分!東京駅や新宿駅、横浜駅に直通☆急な異動やお子様の進学時も引っ越しの心配がありません。
    エコス大横店(スーパー) 770m
    八王子市立第七小学校(小学校) 386m
    八王子市立第六中学校(中学校) 767m
    スーパーアルプス台町店(スーパー) 940m
    業務スーパー西八王子店(スーパー) 1074m
    八王子オクトーレ(ショッピング施設) 1271m
    静教保育園(幼稚園・保育園) 1595m
    岡部クリニック(病院) 469m
    上野町公園(公園) 382m
    スマートフォン版の表示に切り替える