八王子市大和田町の新築一戸建て 2025年9月22日撮影
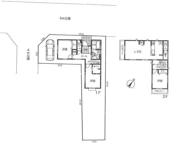
間取り及び区画図
広々としたリビング!便利なリビング収納付きで、掃除道具やお子様のおもちゃをスッキリ収納できます。キッチンからリビング全体を見渡せるため、小さなお子様がいるご家庭にぴったり☆
人気の対面キッチンを採用!ビルトイン食洗機完備で、調理中に食器洗いを気にせずにお皿や調理器具を使えます◎食後はご家族そろってのんびりお過ごしください。
2階リビングで陽当たり良好☆日中は照明いらずの明るさで、ぽかぽかあたたかい陽だまりのリビングです。
白を基調とした高級感のある内装のバスルーム♪マルチステップ仕様のバスタブで、お子様との入浴時や半身浴の際に大変便利です。
玄関入ってすぐに洗面脱衣所がある間取り!リビングに入る前に手洗いうがいができるため衛生的です。
ウォシュレット機能付きで衛生的なトイレ。リビングと離れているため、音やにおいを気にせずストレスフリーのトイレタイムを過ごせます!
1階南側の洋室。大型のウォークインクローゼットを完備!衣類だけでなく、季節物の寝具や、毎年増えるご家族の思い出の品を大切に保管できます。
衣類やかばんをたっぷり収納できるウォークインクローゼット☆ご夫婦や兄弟で分けて使うこともできる広さです。
1階西側の洋室。陽当たりが良すぎないことで、夏でも比較的快適に過ごせます。
2階南側の洋室。バルコニーに面しており、陽当たり良好!冬でもあたたかく過ごせそうです。
南向きのバルコニー!お洗濯物がカラッとはやく乾きます。取り込んだ洗濯物をそのままクローゼットに収納できる家事ラク動線です。
バルコニーからは八王子のおだやかな住宅街が広がります。
バルコニーからの眺望
トールタイプで圧倒的な収納力の玄関スペース☆お気に入りのブーツやお子様の長ぐつもスッキリと収納できます。収納上のカウンター部分はご家族の写真を置くなど、思い出の共有スペースに♪
八王子市大和田町の新築一戸建て オープンハウスアーキテクト施工!木のぬくもりを感じられるお住まいです。
八王子市大和田町の新築一戸建て
北西角地のため、車の入出庫がしやすいカースペース!交通量が少ないため、自分のペースで駐車できます。
スーパーまで徒歩6分の好立地。公園も近く、子育てをしやすい住環境です☆
前面道路を含む現地写真
水栓、シンク
ビルトイン食洗機
レンジフード
三つ口ガスコンロ
テレビモニター付きインターホン
給湯器リモコン



オープンハウスアーキテクト施工!注文住宅ライクなデザインが魅力です♪お住まいは陽当たりの良い2階リビングがうれしいポイントです◎スーパーまで徒歩6分の好立地。公園も近く、子育てをしやすい住環境です☆
大和田小学校 約860m
第一中学校 約1360m